Met een eigen account kun je panden volgen, opslaan als favoriet, je zoekprofiel opslaan en jouw eigen notities bij een huis maken.
Algemeen
Prachtige ruime middels garage geschakelde eengezinswoning met grote L-vormige woonkamer met open keuken, mooie aanbouwkeuken, bijkeuken met toegang tot garage, drie slaapkamers, luxe badkamer met inloopdouche en hangtoilet, voortuin, lange oprit naar garage, achtertuin met overkapping, fraai uitzicht over omgeving en gelegen in de wijk Haanrade, gemeente Kerkrade.
Indeling:
Begane grond:... Meer informatie
Indeling:
Begane grond:... Meer informatie
-
Kenmerken
Alle kenmerken Type object Woonhuis, eengezinswoning, geschakelde woning Bouwperiode 1997 Status Verkocht onder voorbehoud Aangeboden sinds Woensdag 17 december 2025 -
Locatie
Kenmerken
| Overdracht | |
|---|---|
| Referentienummer | 00931 |
| Vraagprijs | € 349.000,- k.k. |
| Inrichting | Niet gestoffeerd |
| Inrichting | Niet gemeubileerd |
| Status | Verkocht onder voorbehoud |
| Aanvaarding | In overleg |
| Aangeboden sinds | Woensdag 17 december 2025 |
| Laatste wijziging | Dinsdag 24 maart 2026 |
| Bouw | |
|---|---|
| Type object | Woonhuis, eengezinswoning, geschakelde woning |
| Soort bouw | Bestaande bouw |
| Bouwperiode | 1997 |
| Dakbedekking | Bitumen |
| Type dak | Platdak |
| Keurmerken | Energie prestatie advies |
| Isolatievormen | Dakisolatie, Dubbel glas, Muurisolatie, Vloerisolatie |
| Oppervlaktes en inhoud | |
|---|---|
| Perceeloppervlakte | 300 m² |
| Woonoppervlakte | 108 m² |
| Woonkameroppervlakte | 36,71 m² |
| Keukenoppervlakte | 6,75 m² |
| Inhoud | 335 m³ |
| Oppervlakte overige inpandige ruimten | 19 m² |
| Indeling | |
|---|---|
| Aantal bouwlagen | 2 |
| Aantal kamers | 4 (waarvan 3 slaapkamers) |
| Aantal badkamers | 1 (en 1 apart toilet) |
| Locatie | |
|---|---|
| Ligging | Aan bosrand, Aan rustige weg, In woonwijk |
| Tuin | |
|---|---|
| Type | Voortuin |
| Oriëntering | West |
| Staat | Prachtig aangelegd |
| Tuin 2 - Type | Zijtuin |
| Tuin 2 - Oriëntering | Zuiden |
| Tuin 2 - Staat | Normaal |
| Tuin 3 - Type | Achtertuin |
| Tuin 3 - Hoofdtuin | Ja |
| Tuin 3 - Oriëntering | Oosten |
| Tuin 3 - Heeft een achterom | Ja |
| Tuin 3 - Staat | Prachtig aangelegd |
| Energieverbruik | |
|---|---|
| Energielabel | A |
| CV ketel | |
|---|---|
| CV ketel | Bosch HRC |
| Warmtebron | Gas |
| Bouwjaar | 2008 |
| Combiketel | Ja |
| Eigendom | Huur |
| Uitrusting | |
|---|---|
| Warm water | CV-ketel |
| Verwarmingssysteem | Centrale verwarming |
| Ventilatie methode | Mechanische ventilatie |
| Badkamervoorzieningen | Inloopdouche, Toilet, Vloerverwarming, Wastafel, Wastafelmeubel |
| Parkeergelegenheid | Aangebouwde stenen garage |
| Heeft kabel-tv | Ja |
| Tuin aanwezig | Ja |
| Heeft een garage | Ja |
| Heeft rolluiken | Ja |
| Heeft zonnepanelen | Ja |
| Heeft ventilatie | Ja |
| Kadastrale gegevens | |
|---|---|
| Kadastrale aanduiding | Kerkrade B 10344 |
| Perceeloppervlakte | 300 m² |
Beschrijving
Prachtige ruime middels garage geschakelde eengezinswoning met grote L-vormige woonkamer met open keuken, mooie aanbouwkeuken, bijkeuken met toegang tot garage, drie slaapkamers, luxe badkamer met inloopdouche en hangtoilet, voortuin, lange oprit naar garage, achtertuin met overkapping, fraai uitzicht over omgeving en gelegen in de wijk Haanrade, gemeente Kerkrade.
Indeling:
Begane grond:
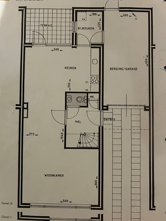
Entree/hal 2,20 x 1,65 met laminaatvloer, nieuwe meterkast met slimme meters, deur naar woonkamer en toiletruimte en trap naar verdieping.
Gastentoilet 1,25 x 0,90 met plavuizenvloer, inbouwspots, hangtoilet en fonteintje.
L-vormige woonkamer 10,40 x 5,00/2,75 met laminaatvloer, deur naar achtertuin en open keuken.
Keuken 3,00 x 2,25 met laminaatvloer, deur naar bijkeuken en fraaie aanbouwkeuken met inductie kookplaat met afzuiging in de kookplaat, vaatwasser, combi-magnetron, koelkast, draaideurcarrousel en spoelbak.
Bijkeuken 2,25 x 1,60 met plavuizenvloer, deur naar garage, aansluitingen was-apparatuur en omvormer voor 9 zonnepanelen (eigendom).
Inpandig bereikbare garage 6,45 x 3,00 met elektrisch bedienbare sectionaal poort, deur naar achtertuin, verwarming en elektriciteit.
Eerste verdieping:
Overloop 2,85 x 1,95 met laminaatvloer.
Slaapkamer 1: 5,00 x 3,60 met laminaatvloer.
Slaapkamer 2: 3,80 x 2,80 met laminaatvloer.
Slaapkamer 3: 3,80 x 2,15 met laminaatvloer.
Luxe badkamer 2,85 x 1,75 met plavuizenvloer met elektrische vloerverwarming, inloopdouche, hangtoilet en badkamermeubel met wastafel (2021).
Stookruimte 1,85 x 1,15 met laminaatvloer, cv-combiketel Bosch HRC van 2008 (gehuurd) en unit mechanische ventilatie.
Overig:
Energielabel A.
Hardhouten kozijnen met dubbele beglazing.
Overal rolluiken waarvan woonkamer en slaapkamer voorkant elektrisch bedienbaar.
Voortuin met beplanting en siergrind.
Zij-tuin is lange oprit 11,75 x 3,00 naar garage en voorzien van afdakje met inbouwspots bij voordeur en garagepoort.
Achtertuin met terras met overkapping 3,50 x 3,10, bestrating, gazon, beplanting, houten schuttingen, siergrind en prachtig uitzicht over de omgeving.
Dit ruime huis is goed onderhouden en gelegen in een rustige straat nabij Duitse grens.
Scholen, winkels en andere voorzieningen bevinden zich in de omgeving.
Aansluiting op wegennet is uitstekend.
Indeling:
Begane grond:
Entree/hal 2,20 x 1,65 met laminaatvloer, nieuwe meterkast met slimme meters, deur naar woonkamer en toiletruimte en trap naar verdieping.
Gastentoilet 1,25 x 0,90 met plavuizenvloer, inbouwspots, hangtoilet en fonteintje.
L-vormige woonkamer 10,40 x 5,00/2,75 met laminaatvloer, deur naar achtertuin en open keuken.
Keuken 3,00 x 2,25 met laminaatvloer, deur naar bijkeuken en fraaie aanbouwkeuken met inductie kookplaat met afzuiging in de kookplaat, vaatwasser, combi-magnetron, koelkast, draaideurcarrousel en spoelbak.
Bijkeuken 2,25 x 1,60 met plavuizenvloer, deur naar garage, aansluitingen was-apparatuur en omvormer voor 9 zonnepanelen (eigendom).
Inpandig bereikbare garage 6,45 x 3,00 met elektrisch bedienbare sectionaal poort, deur naar achtertuin, verwarming en elektriciteit.
Eerste verdieping:
Overloop 2,85 x 1,95 met laminaatvloer.
Slaapkamer 1: 5,00 x 3,60 met laminaatvloer.
Slaapkamer 2: 3,80 x 2,80 met laminaatvloer.
Slaapkamer 3: 3,80 x 2,15 met laminaatvloer.
Luxe badkamer 2,85 x 1,75 met plavuizenvloer met elektrische vloerverwarming, inloopdouche, hangtoilet en badkamermeubel met wastafel (2021).
Stookruimte 1,85 x 1,15 met laminaatvloer, cv-combiketel Bosch HRC van 2008 (gehuurd) en unit mechanische ventilatie.
Overig:
Energielabel A.
Hardhouten kozijnen met dubbele beglazing.
Overal rolluiken waarvan woonkamer en slaapkamer voorkant elektrisch bedienbaar.
Voortuin met beplanting en siergrind.
Zij-tuin is lange oprit 11,75 x 3,00 naar garage en voorzien van afdakje met inbouwspots bij voordeur en garagepoort.
Achtertuin met terras met overkapping 3,50 x 3,10, bestrating, gazon, beplanting, houten schuttingen, siergrind en prachtig uitzicht over de omgeving.
Dit ruime huis is goed onderhouden en gelegen in een rustige straat nabij Duitse grens.
Scholen, winkels en andere voorzieningen bevinden zich in de omgeving.
Aansluiting op wegennet is uitstekend.
Bijzonderheden
Alle door ons kantoor verstrekte informatie is slechts indicatief, geheel vrijblijvend en bedoeld als uitnodiging om in onderhandeling te treden. De vermelde maten kunnen afwijken van de daadwerkelijke maten. Aan deze beperkte informatie kunnen geen rechten worden ontleend. Ons kantoor sluit elke vorm van aansprakelijkheid uit.